| المطور | يو سي للتطوير العقاري |
|---|---|
| الموقع | التجمع الخامس |
| الاسعار تبدأ من | 4,900,000 ج.م |
| مساحات الوحدات | 81 م² الى 177 م² |
| مساحة المشروع | 15 Feddan |
| المقدم | 10 % |
| التقسيط | 7 سنوات |
| أنواع الوحدات | شقق للبيع , |
يشهد سوق العقارات في القاهرة الجديدة، خاصة منطقة التجمع الخامس، طفرة ملحوظة في المشروعات السكنية الراقية، مدفوعة بتوسع المطورين العقاريين في تقديم مجتمعات متكاملة تجمع بين الفخامة، التصميم العصري، والخدمات المتنوعة. وفي هذا الإطار، يبرز كمبوند ترو التجمع الخامس من شركة UC Developments كنموذج رائد للمشروعات السكنية الفاخرة التي تقدم تجربة حياة متكاملة، تجمع بين الراحة، الخصوصية، والخدمات المتطورة، بأسعار تنافسية مقارنة بمستوى الخدمات والموقع المتميز.
تمثل “ترو” رؤية مبتكرة لعالم المجمعات السكنية، حيث يجمع المشروع بين الموقع الاستراتيجي في منطقة اللوتس الحيوية بالقاهرة الجديدة، والتصميم المعماري العصري الذي يركز على المساحات الخضراء، الخصوصية، ونسبة البناء المنخفضة التي لا تتجاوز 20% من إجمالي المساحة، ما يوفر بيئة هادئة وصحية للسكان.
ويتميز كمبوند “ترو” بتنوع الوحدات السكنية من شقق بغرفة واحدة حتى ثلاث غرف، مع مساحات مرنة تبدأ من 81 متر مربع، إضافة إلى توفير أنظمة سداد مرنة تمتد حتى 10 سنوات، ما يجعل المشروع خيارًا مثاليًا لكل من السكن والاستثمار داخل التجمع الخامس.
في هذا المقال، سنستعرض نبذة كاملة عن كمبوند “ترو”, موقعه، المرافق والخدمات المتوفرة، أسعار الوحدات، أنظمة السداد، أبرز المميزات، وأفضل فرص الاستثمار المتاحة داخل المشروع، لتكون دليلك الشامل قبل اتخاذ قرار الشراء أو الاستثمار.
۱ – نبذة عن كمبوند ترو التجمع الخامس

تسطع شركة UC للتطوير العقاري في سماء القاهرة الجديدة بإطلاق كمبوند “ترو” في التجمع الخامس، ليكون نقطة فارقة في عالم المجمعات السكنية الفاخرة. يجسد مشروع “ترو” رؤية مبتكرة تمزج بين الموقع الاستراتيجي، التصميم العصري، والخدمات المتكاملة، مما يضمن تجربة سكنية استثنائية بأسعار لا مثيل لها.
يأخذ كمبوند “ترو” الحياة العصرية في التجمع الخامس إلى مستويات غير مسبوقة، حيث يقدم مزيجاً فريداً من الرفاهية، الراحة، والخصوصية. تهدف شركة UC للتطوير العقاري إلى تقديم تجربة سكنية استثنائية في هذا المشروع، بما يعكس أعلى معايير التصميم والخدمات المتكاملة.
يتميز “ترو التجمع الخامس” بكونه أول مشروع سكني متكامل في المنطقة يجمع بين السكن الراقي والخدمات الترفيهية المتنوعة، ويحتوي على أكاديمية “The Maker” لكرة القدم تحت إشراف الكابتن أحمد حسام ميدو، مما يضيف بُعداً رياضياً واجتماعياً مميزاً للمشروع.
۲ – المطور العقاري لمشروع “ترو” شركة UC Developments

- كمبوند ترو التجمع الخامس
تعد شركة UC Developments من الشركات الرائدة في مجال التطوير العقاري بمصر، حيث تتميز برؤية تطويرية مبتكرة تركز على تقديم مشروعات سكنية متكاملة. تسعى الشركة دائمًا للتعاون مع أفضل الخبراء والاستشاريين لتقديم منتجات عقارية متميزة تلبي تطلعات عملائها.
تستند خبرة شركة UC Developments إلى سجل حافل من النجاحات في تطوير المشاريع السكنية والتجارية في أهم مناطق القاهرة الكبرى. تتميز الشركة بقدرتها على تقديم حلول سكنية مبتكرة تواكب احتياجات السوق المصري المتنامية.
تلتزم الشركة بأعلى معايير الجودة في جميع مراحل التطوير، بدءًا من اختيار المواقع مرورًا بالتصميم والتنفيذ، مع التركيز على تقديم قيمة مضافة حقيقية لعملائها. وتعتمد UC Developments على فريق من الخبراء المتخصصين لضمان تنفيذ مشروعاتها وفقًا لأعلى المعايير العالمية.
۳ – أبرز مشروعات شركة UC Developments للتطوير العقاري
- كمبوند سولي جولف ريزيدنس العاصمة الإدارية الجديدة Compound Suli Golf Residence New Capital.
- مول ايست تاور العاصمة الإدارية الجديدة Mall East Tower New Capital.
- يوني تاور العاصمة الإدارية الجديدة Uni Tower New Capital.
- تنفيذ عدد من المشاريع السكنية في منطقة مصر الجديدة.
- و تنفيذ عدد كبير من المشاريع التجارية في منطقة 6 أكتوبر.
- تنفيذ مباني تجارية وسكنية في القاهرة الجديدة.
- تنفيذ مجموعة مشاريع في التجمع الخامس.
٤ – موقع كمبوند ترو

- كمبوند ترو التجمع الخامس
اختارت شركة UC العقارية موقعاً استثنائياً لمشروع كمبوند ترو التجمع الخامس في منطقة اللوتس الحيوية، حيث يقع الكمبوند في موقع متميز بالصف الثاني من شارع التسعين الجنوبي والصف الثالث من شارع التسعين الشمالي.
يتميز المشروع بوجود مدخلين رئيسيين، الأول من الشارع الرابط بين التسعين الجنوبي والشمالي بعرض 70 متر، والثاني من الشارع الرئيسي بعرض 45 متر، مما يضمن سهولة الوصول والتنقل داخل كمبوند “ترو” القاهرة الجديدة في أي وقت.
٥ – أبرز الطرق والمدن القريبة من المشروع

- كمبوند ترو التجمع الخامس
- يتميز كمبوند ترو التجمع الخامس بقربه من محطة المونوريل، مما يوفر خيارات تنقل عصرية وسريعة للقاطنين.
- يحيط مشروع ترو UC بمجموعة من أرقى المراكز التجارية مثل Point 90 Mall و The Spot Mall.
- يقع Compound Tru New Cairo على مقربة من جامعة المستقبل، مما يوفر فرصاً تعليمية متميزة.
- يتصل كمبوند ترو القاهرة الجديدة بشبكة طرق رئيسية تسهل الوصول إلى كافة المناطق الحيوية.
- يجاور True New Cairo مجمع ماكسيم التجاري، مما يضمن تجربة تسوق متكاملة.
- يقع كمبوند ترو التجمع الخامس TRU New Cairo بالقرب من كمبوند ايفر التجمع الخامس و كمبوند بيراج التجمع الخامس.
تمنح مميزات موقع كمبوند True New Cairo قيمة استثمارية عالية، حيث يجمع مشروع شركة UC Development بين الهدوء والخصوصية مع سهولة الوصول إلى كافة المرافق الحيوية في القاهرة الجديدة.
٦ – أنواع الوحدات في “ترو”
- شقق
٧ – مساحة الوحدات في “ترو”
يمتد مشروع “ترو” من شركة UC على مساحة إجمالية قدرها 15 فدانًا، حيث تم تخصيص 20% فقط منها للمباني السكنية، مما يتيح مساحات واسعة للحدائق والخدمات. يهدف كمبوند “ترو” القاهرة الجديدة إلى تقديم خيارات متنوعة من الشقق التي تلبي احتياجات مختلف العملاء.
تم تصميم المساحات الخضراء والمناطق المفتوحة في كمبوند “ترو” بعناية فائقة، حيث تشغل هذه المساحات 80% من إجمالي المساحة، مما يضمن بيئة سكنية صحية ومريحة تتناغم مع متطلبات الحياة العصرية.
تتراوح مساحات الشقق في كمبوند “ترو” القاهرة الجديدة كما يلي:
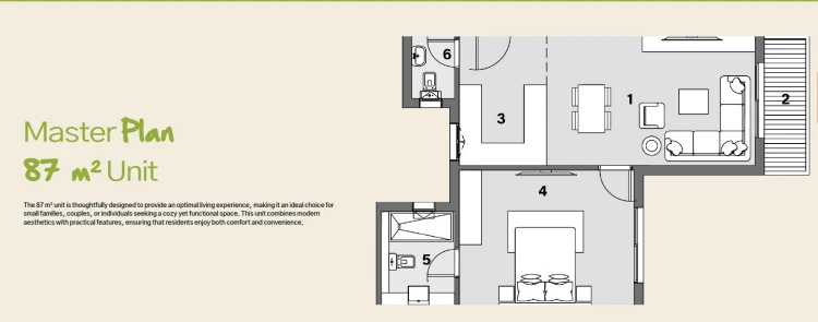
- شقق بغرفة نوم واحدة بمساحات تبدأ من 81 متر مربع وتصل إلى 87 متر مربع.
- و شقق بغرفتي نوم بمساحات تبدأ من 114 متر مربع وتصل إلى 116 متر مربع.
- شقق بثلاث غرف نوم بمساحات تتراوح بين 145 و177 متر مربع.
۸ – أسعار الوحدات في كمبوند ترو التجمع الخامس

- كمبوند ترو التجمع الخامس
تقدم شركة UC للتطوير العقاري أسعارًا تنافسية في كمبوند “ترو” القاهرة الجديدة، حيث تبدأ الأسعار من 59,000 جنيه وتصل إلى 67,000 جنيه للمتر، مما يوفر فرصة ممتازة للباحثين عن شقة للبيع في الكمبوند ويجعلها فرصة استثمارية لا تعوض.
تتنوع أسعار الشقق في كمبوند “ترو” التجمع الخامس لتناسب مختلف الاحتياجات، حيث تبدأ أسعار الشقق بغرفة نوم واحدة من 4,900,000 جنيه مصري، بينما تبدأ أسعار الشقق بغرفتي نوم من 7,400,000 جنيه مصري. أما الشقق بثلاث غرف نوم في مشروع “ترو” القاهرة الجديدة فتصل أسعارها إلى 9,200,000 جنيه مصري.
۹ – طرق الدفع و السداد في كمبوند ترو التجمع الخامس

- كمبوند ترو التجمع الخامس
يقدم كمبوند “ترو” القاهرة الجديدة باقة متنوعة من أنظمة التقسيط المرنة التي تمتد حتى 10 سنوات، مع إمكانية الاستفادة من العروض والخصومات التنافسية. كما يقدم مشروع “ترو” من شركة UC للتطوير العقاري خصم 10% بمناسبة إطلاق المشروع، مما يتيح لوحدات بالتقسيط في Compound Tru New Cairo بدفع 10% مقدم حجز مع التقسيط على 7 سنوات.
- يمكنك شراء شقة في كمبوند ترو القاهرة الجديدة بدفع 15% مقدم حجز وتقسيط الباقي على 8 سنوات.
- شقق للبيع في كمبوند ترو التجمع الخامس بنظام 10% مقدم مع إمكانية التقسيط على 10 سنوات.
يمكن حجز وحدتك في مشروع ترو التجمع الخامس True New Cairo من خلال دفع جدية حجز 50,000 جنيه مصري، وهي قابلة للاسترداد في حالة عدم استكمال التعاقد، كما يتم تسليم الوحدات في كمبوند Tru New Cairo بنظام نصف التشطيب خلال 4 سنوات اي عام 2029.
لعملاء فرصة الحصول على وحدات سكنية بأسعار مميزة.
۱۰ – المميزات المتوفرة في كمبوند ترو التجمع الخامس

- كمبوند ترو التجمع الخامس
يتفرد كمبوند “ترو” التجمع الخامس بموقعه الاستراتيجي المتميز أمام الجامعة الأمريكية، مع تصميم معماري فريد من توقيع المهندس ياسر البلتاجي. يتميز الكمبوند بنسبة بناء منخفضة تبلغ 20% فقط من المساحة الإجمالية، مما يتيح مساحات واسعة للخدمات والمناطق الخضراء.
يتمتع المشروع بتصميم مستدام يراعي أحدث معايير الحفاظ على البيئة، مع استخدام تقنيات ذكية لإدارة الطاقة والمياه. كما يوفر مشروع UC Developments نظام أمن متكامل يعمل على مدار الساعة لضمان راحة وأمان القاطنين.
يضم كمبوند “ترو” القاهرة الجديدة مجموعة متميزة من المرافق الخدمية التي توفر حياة متكاملة للسكان، بدءًا من المناطق التجارية وصولاً إلى المساحات الترفيهية والرياضية. كما يتميز الكمبوند بتصميم عصري يضمن الخصوصية والراحة لجميع القاطنين.
۱۱ – الخدمات المتوفرة في كمبوند ترو التجمع الخامس

- كمبوند ترو التجمع الخامس
يمتاز مشروع “ترو” التجمع الخامس بمنطقة “Strip Mall” التجارية الراقية التي تضم مجموعة منتقاة من المتاجر والمطاعم العالمية والمحلية. كما يفتخر الكمبوند بتقديم ملعب كرة قدم بمواصفات احترافية على مساحة فدان كامل، تحت إدارة أكاديمية The Maker، مع توفير برامج تدريبية متخصصة.
يقدم كمبوند “ترو” القاهرة الجديدة أيضًا ناديًا رياضيًا متكاملًا يضم صالة جيم مجهزة بأحدث المعدات العالمية، بالإضافة إلى استوديو متخصص لليوجا. كما يتميز المشروع بنادٍ اجتماعي فاخر Club House يضم قاعات متعددة الاستخدامات للمناسبات والفعاليات، مع خدمات ضيافة راقية ومطاعم تطل على المساحات الخضراء.
خصص الكمبوند منطقة Kids Area نموذجية تضم مناطق لعب داخلية وخارجية مجهزة بأحدث الألعاب التعليمية والترفيهية. كما يتميز بمسارات مخصصة للجري والدراجات تمتد عبر المساحات الخضراء، مع محطات استراحة مظللة.
يوفر كمبوند “ترو” أيضًا مركزًا صحيًا متكاملاً يضم عيادات طبية متخصصة وصيدلية تعمل على مدار الساعة، مع خدمة طوارئ طبية متوفرة لسكان الكمبوند. تم تصميم حديقة مركزية تمتد على مساحة واسعة، تضم مناطق للتنزه العائلي، مقاعد مظللة، وعناصر مائية.
يتضمن المشروع مركزًا تجاريًا خدميًا يضم فروع للبنوك، خدمات البريد السريع، ومغسلة ملابس VIP، لتلبية احتياجات سكان الكمبوند اليومية. وأيضًا، يوفر الكمبوند نظامًا ذكيًا لإدارة المواقف يشمل مواقف مخصصة لكل وحدة سكنية ومواقف إضافية للزوار، مع نظام أمني متطور لمراقبة وتنظيم حركة السيارات داخل المشروع.
۱۲ – التصميم المعماري لمباني كمبوند Tru التجمع الخامس

- كمبوند ترو التجمع الخامس
تفوقت شركة UC للتطوير العقاري في تقديم تصميم معماري متقن لكمبوند Tru التجمع الخامس، يُشبه اللوحة الفنية التي تم رسم خطوطها بدقة، حيث تتناغم جميع عناصر المشروع بشكل مثالي. وتستحوذ المساحات الخضراء ومناطق اللاندسكيب على الجزء الأكبر من المساحة الإجمالية، مما يعزز من جمال الكمبوند ويوفر بيئة هادئة ومريحة تضمن تجربة سكنية ممتعة للسكان.
استعانت الشركة بأفضل المهندسين المعماريين لإخراج تحفة معمارية تعكس الرؤية الحديثة للسكن في مصر، مع واجهات خارجية لكل المباني تمزج بين الطابع العصري والتراث المصري الأصيل، لتخلق هوية معمارية فريدة لمشروع Tru.
أبرز ملامح التخطيط المعماري:
- يمتد كمبوند Tru على مساحة إجمالية قدرها 15 فدانًا.
- المباني مكونة من دور أرضي بالإضافة إلى 3 أدوار متكررة، مع توزيع مثالي للمساحات لضمان خصوصية السكان.
- تنوع وحدات المشروع من شقق بغرفة واحدة حتى ثلاث غرف، مع مساحات مرنة تناسب مختلف الاحتياجات.
- التصميم الداخلي تم تنسيقه بعناية ليعكس نمط حياة عصري، مع مساحات واسعة، ألوان هادئة، وتشطيبات راقية تلبي أذواق العملاء الباحثين عن الفخامة والراحة.
يهدف التصميم المعماري لمشروع Tru إلى دمج الحداثة والابتكار في كل جانب، سواء في تخطيط المباني، توزيع المساحات، أو خلق بيئة سكنية متكاملة تُعزز من جودة الحياة داخل الكمبوند.